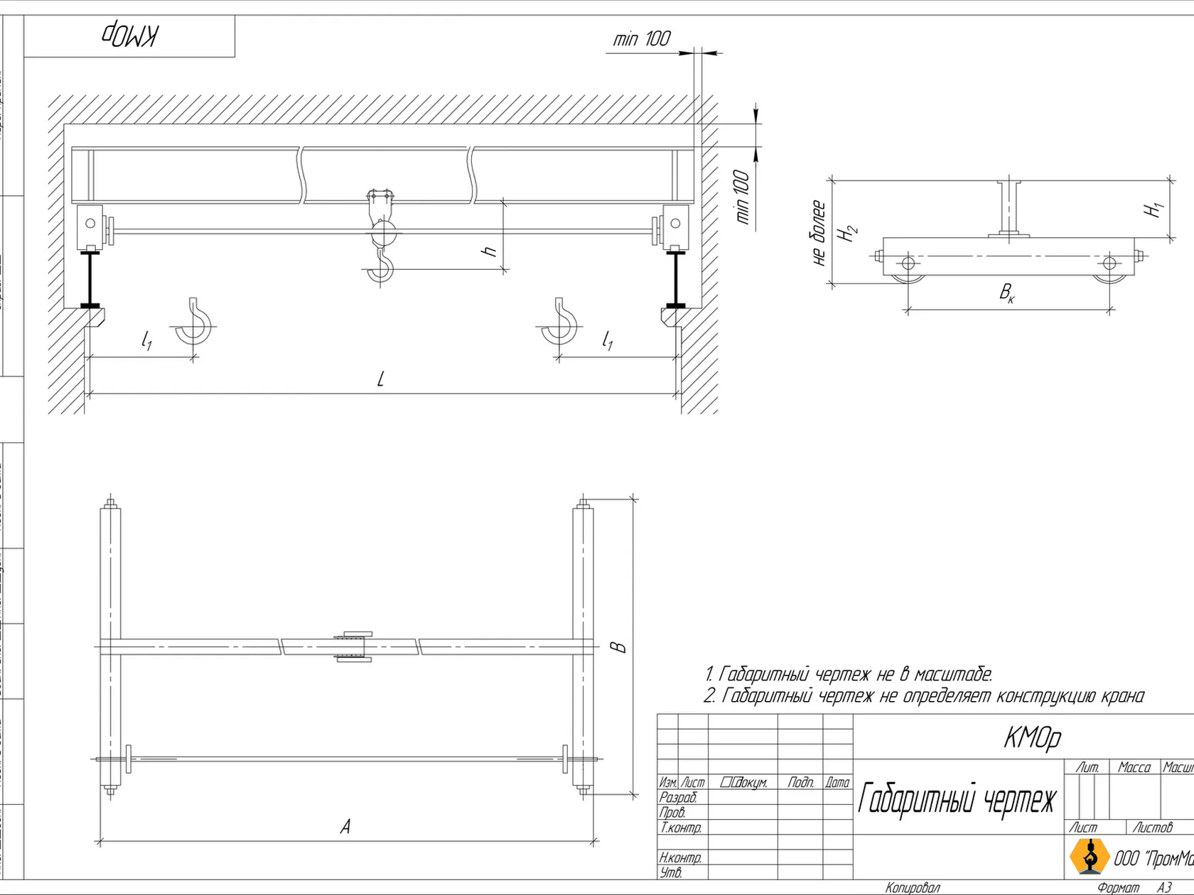
Описание
Опорные ручные мостовые краны применяются на предприятиях, где интенсивность грузоподъёмных операций невысока или отсутствует необходимость в электрическом приводе. Такие краны отличаются простой конструкцией, надёжностью и минимальными требованиями к эксплуатации.
Конструкция крана включает несущую балку, ручную таль и механизмы передвижения, которые приводятся в движение вручную. Кран перемещается по подкрановым путям с помощью ручных приводов.
Ручные мостовые краны используются в небольших производственных помещениях, на складах, в ремонтных мастерских и на участках с периодическими грузоподъёмными операциями.
Основные преимущества ручных мостовых кранов:
- простота конструкции
- низкая стоимость оборудования
- независимость от электроснабжения
- надёжность эксплуатации
- минимальные требования к обслуживанию
Компания «Проммаш» изготавливает опорные ручные мостовые краны с различными параметрами грузоподъёмности и пролёта, а также выполняет монтаж и техническое обслуживание оборудования.